ENSCHEDE
€ 569.000
Roomweg 98
4 Kamers
1 Badkamers
3 Slaapkamers
121 m²
A
Achtertuin
Bezichtiging aanvragen
Beschrijving
Roomweg 98 te Enschede staat te koop!
Onder architectuur gebouwde stadswoning | Gasloos | Energielabel A | Dakterras & tuin op het zuiden.
Niet zomaar een twee-onder-een-kapwoning, maar een architectonisch statement in het hart van de geliefde wijk Roombeek. Deze unieke stadswoning is in 2007 onder architectuur gebouwd door Michiel de Wit en tot in detail doordacht. Ruimte, licht, materiaalgebruik en speelsheid komen hier op uitzonderlijke wijze samen. Een bijzonder en karakteristiek detail vormen de interne betonelementen met houtlook afwerking, die zorgen voor een robuuste én warme uitstraling.
Duurzaam, comfortabel en toekomstbestendig.
De woning is vanaf de bouw volledig geïsoleerd en aangesloten op het warmtenet, waardoor deze nu al volledig gasloos is. Met vloerverwarming in de hal, keuken, het toilet en de badkamer én een houtgestookte kachel in de woonkamer is comfort hier het hele jaar door gegarandeerd. Het recent vastgestelde energielabel A onderstreept de duurzame kwaliteit van deze woning.
Licht, ruimte en een verrassende indeling.
Dankzij de grote raampartijen, meerdere lichtkoepels en de slimme positionering van de ruimtes wordt de woning de hele dag door gevuld met natuurlijk licht. De indeling is speels en onderscheidend, waardoor elke verdieping zijn eigen karakter en beleving heeft. Dit is een huis dat je niet alleen ziet, maar vooral ervaart.
Buitenleven & extra mogelijkheden.
De fraai aangelegde achtertuin op het zuiden biedt optimale privacy en vormt, mede dankzij de overkapping direct grenzend aan de woonkamer, een heerlijke plek om het hele jaar door buiten te genieten. Deze overkapping verlengt op natuurlijke wijze de leefruimte en maakt binnen en buiten moeiteloos één geheel. Vanuit de tuin bereik je de multifunctionele, volledig geïsoleerde garage, voorzien van maar liefst vier lichtkoepels, verwarming en zowel warm als koud water, ideaal als werkruimte, hobbyruimte of atelier. Daarnaast beschikt de woning over een carport (2,85 meter hoog!) en een royaal dakterras op de bovenste verdieping, waar je in alle rust van zon en uitzicht geniet.
Wonen in Roombeek.
Roombeek is een levendige en culturele wijk met een breed aanbod aan winkels, musea en sportvoorzieningen. Het centrum van Enschede ligt op loopafstand en is eenvoudig bereikbaar via de Cultuurmijl. Tegelijkertijd bevinden parken en natuurgebieden zich om de hoek, wat zorgt voor een perfecte balans tussen stedelijk wonen en ontspanning. De bereikbaarheid met openbaar vervoer en uitvalswegen is uitstekend.
Indeling
Begane grond;
Entree met hal, meterkast en hangend toilet met fonteintje. De tuingerichte woonkamer beschikt over een houtkachel en dubbele openslaande deuren naar de overkapping en tuin. De straatgerichte open woonkeuken ligt op een speelse verhoging en is voorzien van een moderne inbouwkeuken met alle hedendaagse apparatuur. Vanuit de keuken leidt een fraaie houten trap naar de eerste verdieping.
Eerste verdieping;
Overloop met praktische inbouwkast voor het witgoed, twee slaapkamers en een luxe badkamer voorzien van een dubbel wastafelmeubel, hangend toilet, ligbad, inloopdouche en een lichtkoepel.
Tweede verdieping;
Vaste trap naar de zolderverdieping met een derde slaapkamer, vaste kastenwand en openslaande deuren naar het riante dakterras.
Kortom: een uitzonderlijk gave woning met karakter, comfort en duurzaamheid op een toplocatie.
Dit is een huis dat je gezien én gevoeld moet hebben.
Bijzonderheden:
- Bouwjaar: 2007.
- Perceeloppervlakte: 238 m².
- Woonoppervlakte: 121 m².
- Inhoud: 427 m³.
- Onder architectuur gebouwde twee-onder-een-kap stadswoning (architect: Michiel de Wit).
- Gelegen in de populaire, culturele en geliefde woonwijk Roombeek.
- Unieke en speelse indeling met veel aandacht voor licht, ruimte en zichtlijnen.
- Hoogwaardige materiaalafwerking met karakteristieke interne betonelementen met houtlook uitstraling.
- Volledig en optimaal geïsoleerd vanaf de bouw.
- Gasloos wonen dankzij aansluiting op het warmtenet.
- Energielabel A.
- Vloerverwarming in hal, keuken, toilet en badkamer.
- Tuingerichte woonkamer met houtgestookte kachel en dubbele openslaande deuren.
- Overkapping direct grenzend aan de woonkamer, waardoor binnen en buiten naadloos in elkaar overlopen.
- Straatgerichte open woonkeuken op verhoging, voorzien van moderne inbouwapparatuur.
- Drie slaapkamers, waaronder een slaapkamer met vaste kastenwand en openslaande deuren naar het dakterras.
- Moderne badkamer met ligbad, inloopdouche, dubbel wastafelmeubel, hangend toilet en lichtkoepel.
- Fraai aangelegde achtertuin op het zuiden met optimale privacy.
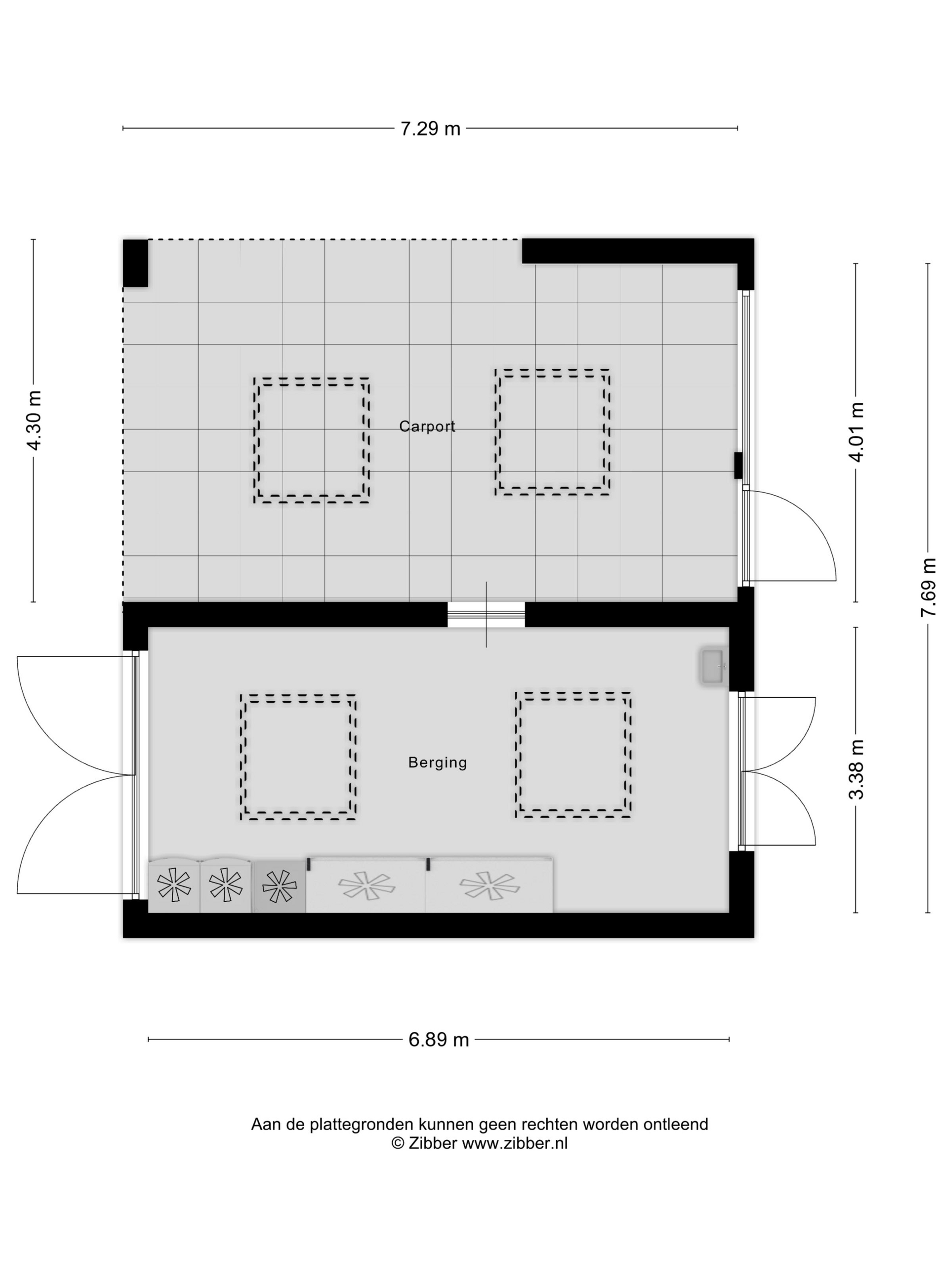
- Multifunctionele vrijstaande garage, volledig geïsoleerd en voorzien van vier lichtkoepels, verwarming en warm/koud water.
- Garage geschikt als werkruimte, atelier of hobbyruimte.
- Carport aanwezig die maar liefst 2,85 meter hoog is.
- Riant dakterras met veel zon en privacy.
- Centrum van Enschede op loopafstand, bereikbaar via de Cultuurmijl.
- Nabij winkels, horeca, musea, sportvoorzieningen, parken en uitvalswegen.
In de koopovereenkomst zullen de navolgende zaken worden opgenomen:
- Schriftelijkheidsvereiste: partijen zijn pas gebonden niet eerder dan dat er een schriftelijke koopovereenkomst is getekend door partijen.
- Ouderdomsclausule.
- Het stellen van een bankgarantie/waarborgsom ter grootte van 10% van de koopsom.
Aanvaarding: in overleg.
Interesse in dit huis? Schakel direct uw eigen NVM- aankoopmakelaar in. Uw NVM- aankoop makelaar komt op voor uw belang en bespaart u tijd, geld en zorgen.
Adressen van collega NVM- aankoopmakelaars in Twente vindt u op de website van NVM Twente.
Onder architectuur gebouwde stadswoning | Gasloos | Energielabel A | Dakterras & tuin op het zuiden.
Niet zomaar een twee-onder-een-kapwoning, maar een architectonisch statement in het hart van de geliefde wijk Roombeek. Deze unieke stadswoning is in 2007 onder architectuur gebouwd door Michiel de Wit en tot in detail doordacht. Ruimte, licht, materiaalgebruik en speelsheid komen hier op uitzonderlijke wijze samen. Een bijzonder en karakteristiek detail vormen de interne betonelementen met houtlook afwerking, die zorgen voor een robuuste én warme uitstraling.
Duurzaam, comfortabel en toekomstbestendig.
De woning is vanaf de bouw volledig geïsoleerd en aangesloten op het warmtenet, waardoor deze nu al volledig gasloos is. Met vloerverwarming in de hal, keuken, het toilet en de badkamer én een houtgestookte kachel in de woonkamer is comfort hier het hele jaar door gegarandeerd. Het recent vastgestelde energielabel A onderstreept de duurzame kwaliteit van deze woning.
Licht, ruimte en een verrassende indeling.
Dankzij de grote raampartijen, meerdere lichtkoepels en de slimme positionering van de ruimtes wordt de woning de hele dag door gevuld met natuurlijk licht. De indeling is speels en onderscheidend, waardoor elke verdieping zijn eigen karakter en beleving heeft. Dit is een huis dat je niet alleen ziet, maar vooral ervaart.
Buitenleven & extra mogelijkheden.
De fraai aangelegde achtertuin op het zuiden biedt optimale privacy en vormt, mede dankzij de overkapping direct grenzend aan de woonkamer, een heerlijke plek om het hele jaar door buiten te genieten. Deze overkapping verlengt op natuurlijke wijze de leefruimte en maakt binnen en buiten moeiteloos één geheel. Vanuit de tuin bereik je de multifunctionele, volledig geïsoleerde garage, voorzien van maar liefst vier lichtkoepels, verwarming en zowel warm als koud water, ideaal als werkruimte, hobbyruimte of atelier. Daarnaast beschikt de woning over een carport (2,85 meter hoog!) en een royaal dakterras op de bovenste verdieping, waar je in alle rust van zon en uitzicht geniet.
Wonen in Roombeek.
Roombeek is een levendige en culturele wijk met een breed aanbod aan winkels, musea en sportvoorzieningen. Het centrum van Enschede ligt op loopafstand en is eenvoudig bereikbaar via de Cultuurmijl. Tegelijkertijd bevinden parken en natuurgebieden zich om de hoek, wat zorgt voor een perfecte balans tussen stedelijk wonen en ontspanning. De bereikbaarheid met openbaar vervoer en uitvalswegen is uitstekend.
Indeling
Begane grond;
Entree met hal, meterkast en hangend toilet met fonteintje. De tuingerichte woonkamer beschikt over een houtkachel en dubbele openslaande deuren naar de overkapping en tuin. De straatgerichte open woonkeuken ligt op een speelse verhoging en is voorzien van een moderne inbouwkeuken met alle hedendaagse apparatuur. Vanuit de keuken leidt een fraaie houten trap naar de eerste verdieping.
Eerste verdieping;
Overloop met praktische inbouwkast voor het witgoed, twee slaapkamers en een luxe badkamer voorzien van een dubbel wastafelmeubel, hangend toilet, ligbad, inloopdouche en een lichtkoepel.
Tweede verdieping;
Vaste trap naar de zolderverdieping met een derde slaapkamer, vaste kastenwand en openslaande deuren naar het riante dakterras.
Kortom: een uitzonderlijk gave woning met karakter, comfort en duurzaamheid op een toplocatie.
Dit is een huis dat je gezien én gevoeld moet hebben.
Bijzonderheden:
- Bouwjaar: 2007.
- Perceeloppervlakte: 238 m².
- Woonoppervlakte: 121 m².
- Inhoud: 427 m³.
- Onder architectuur gebouwde twee-onder-een-kap stadswoning (architect: Michiel de Wit).
- Gelegen in de populaire, culturele en geliefde woonwijk Roombeek.
- Unieke en speelse indeling met veel aandacht voor licht, ruimte en zichtlijnen.
- Hoogwaardige materiaalafwerking met karakteristieke interne betonelementen met houtlook uitstraling.
- Volledig en optimaal geïsoleerd vanaf de bouw.
- Gasloos wonen dankzij aansluiting op het warmtenet.
- Energielabel A.
- Vloerverwarming in hal, keuken, toilet en badkamer.
- Tuingerichte woonkamer met houtgestookte kachel en dubbele openslaande deuren.
- Overkapping direct grenzend aan de woonkamer, waardoor binnen en buiten naadloos in elkaar overlopen.
- Straatgerichte open woonkeuken op verhoging, voorzien van moderne inbouwapparatuur.
- Drie slaapkamers, waaronder een slaapkamer met vaste kastenwand en openslaande deuren naar het dakterras.
- Moderne badkamer met ligbad, inloopdouche, dubbel wastafelmeubel, hangend toilet en lichtkoepel.
- Fraai aangelegde achtertuin op het zuiden met optimale privacy.
- Multifunctionele vrijstaande garage, volledig geïsoleerd en voorzien van vier lichtkoepels, verwarming en warm/koud water.
- Garage geschikt als werkruimte, atelier of hobbyruimte.
- Carport aanwezig die maar liefst 2,85 meter hoog is.
- Riant dakterras met veel zon en privacy.
- Centrum van Enschede op loopafstand, bereikbaar via de Cultuurmijl.
- Nabij winkels, horeca, musea, sportvoorzieningen, parken en uitvalswegen.
In de koopovereenkomst zullen de navolgende zaken worden opgenomen:
- Schriftelijkheidsvereiste: partijen zijn pas gebonden niet eerder dan dat er een schriftelijke koopovereenkomst is getekend door partijen.
- Ouderdomsclausule.
- Het stellen van een bankgarantie/waarborgsom ter grootte van 10% van de koopsom.
Aanvaarding: in overleg.
Interesse in dit huis? Schakel direct uw eigen NVM- aankoopmakelaar in. Uw NVM- aankoop makelaar komt op voor uw belang en bespaart u tijd, geld en zorgen.
Adressen van collega NVM- aankoopmakelaars in Twente vindt u op de website van NVM Twente.
Beschrijving
Roomweg 98 te Enschede staat te koop!
Onder architectuur gebouwde stadswoning | Gasloos | Energielabel A | Dakterras & tuin op het zuiden.
Niet zomaar een twee-onder-een-kapwoning, maar een architectonisch statement in het hart van de geliefde wijk Roombeek. Deze unieke stadswoning is in 2007 onder architectuur gebouwd door Michiel de Wit en tot in detail doordacht. Ruimte, licht, materiaalgebruik en speelsheid komen hier op uitzonderlijke wijze samen. Een bijzonder en karakteristiek detail vormen de interne betonelementen met houtlook afwerking, die zorgen voor een robuuste én warme uitstraling.
Duurzaam, comfortabel en toekomstbestendig.
De woning is vanaf de bouw volledig geïsoleerd en aangesloten op het warmtenet, waardoor deze nu al volledig gasloos is. Met vloerverwarming in de hal, keuken, het toilet en de badkamer én een houtgestookte kachel in de woonkamer is comfort hier het hele jaar door gegarandeerd. Het recent vastgestelde energielabel A onderstreept de duurzame kwaliteit van deze woning.
Licht, ruimte en een verrassende indeling.
Dankzij de grote raampartijen, meerdere lichtkoepels en de slimme positionering van de ruimtes wordt de woning de hele dag door gevuld met natuurlijk licht. De indeling is speels en onderscheidend, waardoor elke verdieping zijn eigen karakter en beleving heeft. Dit is een huis dat je niet alleen ziet, maar vooral ervaart.
Buitenleven & extra mogelijkheden.
De fraai aangelegde achtertuin op het zuiden biedt optimale privacy en vormt, mede dankzij de overkapping direct grenzend aan de woonkamer, een heerlijke plek om het hele jaar door buiten te genieten. Deze overkapping verlengt op natuurlijke wijze de leefruimte en maakt binnen en buiten moeiteloos één geheel. Vanuit de tuin bereik je de multifunctionele, volledig geïsoleerde garage, voorzien van maar liefst vier lichtkoepels, verwarming en zowel warm als koud water, ideaal als werkruimte, hobbyruimte of atelier. Daarnaast beschikt de woning over een carport (2,85 meter hoog!) en een royaal dakterras op de bovenste verdieping, waar je in alle rust van zon en uitzicht geniet.
Wonen in Roombeek.
Roombeek is een levendige en culturele wijk met een breed aanbod aan winkels, musea en sportvoorzieningen. Het centrum van Enschede ligt op loopafstand en is eenvoudig bereikbaar via de Cultuurmijl. Tegelijkertijd bevinden parken en natuurgebieden zich om de hoek, wat zorgt voor een perfecte balans tussen stedelijk wonen en ontspanning. De bereikbaarheid met openbaar vervoer en uitvalswegen is uitstekend.
Indeling
Begane grond;
Entree met hal, meterkast en hangend toilet met fonteintje. De tuingerichte woonkamer beschikt over een houtkachel en dubbele openslaande deuren naar de overkapping en tuin. De straatgerichte open woonkeuken ligt op een speelse verhoging en is voorzien van een moderne inbouwkeuken met alle hedendaagse apparatuur. Vanuit de keuken leidt een fraaie houten trap naar de eerste verdieping.
Eerste verdieping;
Overloop met praktische inbouwkast voor het witgoed, twee slaapkamers en een luxe badkamer voorzien van een dubbel wastafelmeubel, hangend toilet, ligbad, inloopdouche en een lichtkoepel.
Tweede verdieping;
Vaste trap naar de zolderverdieping met een derde slaapkamer, vaste kastenwand en openslaande deuren naar het riante dakterras.
Kortom: een uitzonderlijk gave woning met karakter, comfort en duurzaamheid op een toplocatie.
Dit is een huis dat je gezien én gevoeld moet hebben.
Bijzonderheden:
- Bouwjaar: 2007.
- Perceeloppervlakte: 238 m².
- Woonoppervlakte: 121 m².
- Inhoud: 427 m³.
- Onder architectuur gebouwde twee-onder-een-kap stadswoning (architect: Michiel de Wit).
- Gelegen in de populaire, culturele en geliefde woonwijk Roombeek.
- Unieke en speelse indeling met veel aandacht voor licht, ruimte en zichtlijnen.
- Hoogwaardige materiaalafwerking met karakteristieke interne betonelementen met houtlook uitstraling.
- Volledig en optimaal geïsoleerd vanaf de bouw.
- Gasloos wonen dankzij aansluiting op het warmtenet.
- Energielabel A.
- Vloerverwarming in hal, keuken, toilet en badkamer.
- Tuingerichte woonkamer met houtgestookte kachel en dubbele openslaande deuren.
- Overkapping direct grenzend aan de woonkamer, waardoor binnen en buiten naadloos in elkaar overlopen.
- Straatgerichte open woonkeuken op verhoging, voorzien van moderne inbouwapparatuur.
- Drie slaapkamers, waaronder een slaapkamer met vaste kastenwand en openslaande deuren naar het dakterras.
- Moderne badkamer met ligbad, inloopdouche, dubbel wastafelmeubel, hangend toilet en lichtkoepel.
- Fraai aangelegde achtertuin op het zuiden met optimale privacy.
- Multifunctionele vrijstaande garage, volledig geïsoleerd en voorzien van vier lichtkoepels, verwarming en warm/koud water.
- Garage geschikt als werkruimte, atelier of hobbyruimte.
- Carport aanwezig die maar liefst 2,85 meter hoog is.
- Riant dakterras met veel zon en privacy.
- Centrum van Enschede op loopafstand, bereikbaar via de Cultuurmijl.
- Nabij winkels, horeca, musea, sportvoorzieningen, parken en uitvalswegen.
In de koopovereenkomst zullen de navolgende zaken worden opgenomen:
- Schriftelijkheidsvereiste: partijen zijn pas gebonden niet eerder dan dat er een schriftelijke koopovereenkomst is getekend door partijen.
- Ouderdomsclausule.
- Het stellen van een bankgarantie/waarborgsom ter grootte van 10% van de koopsom.
Aanvaarding: in overleg.
Interesse in dit huis? Schakel direct uw eigen NVM- aankoopmakelaar in. Uw NVM- aankoop makelaar komt op voor uw belang en bespaart u tijd, geld en zorgen.
Adressen van collega NVM- aankoopmakelaars in Twente vindt u op de website van NVM Twente.
Onder architectuur gebouwde stadswoning | Gasloos | Energielabel A | Dakterras & tuin op het zuiden.
Niet zomaar een twee-onder-een-kapwoning, maar een architectonisch statement in het hart van de geliefde wijk Roombeek. Deze unieke stadswoning is in 2007 onder architectuur gebouwd door Michiel de Wit en tot in detail doordacht. Ruimte, licht, materiaalgebruik en speelsheid komen hier op uitzonderlijke wijze samen. Een bijzonder en karakteristiek detail vormen de interne betonelementen met houtlook afwerking, die zorgen voor een robuuste én warme uitstraling.
Duurzaam, comfortabel en toekomstbestendig.
De woning is vanaf de bouw volledig geïsoleerd en aangesloten op het warmtenet, waardoor deze nu al volledig gasloos is. Met vloerverwarming in de hal, keuken, het toilet en de badkamer én een houtgestookte kachel in de woonkamer is comfort hier het hele jaar door gegarandeerd. Het recent vastgestelde energielabel A onderstreept de duurzame kwaliteit van deze woning.
Licht, ruimte en een verrassende indeling.
Dankzij de grote raampartijen, meerdere lichtkoepels en de slimme positionering van de ruimtes wordt de woning de hele dag door gevuld met natuurlijk licht. De indeling is speels en onderscheidend, waardoor elke verdieping zijn eigen karakter en beleving heeft. Dit is een huis dat je niet alleen ziet, maar vooral ervaart.
Buitenleven & extra mogelijkheden.
De fraai aangelegde achtertuin op het zuiden biedt optimale privacy en vormt, mede dankzij de overkapping direct grenzend aan de woonkamer, een heerlijke plek om het hele jaar door buiten te genieten. Deze overkapping verlengt op natuurlijke wijze de leefruimte en maakt binnen en buiten moeiteloos één geheel. Vanuit de tuin bereik je de multifunctionele, volledig geïsoleerde garage, voorzien van maar liefst vier lichtkoepels, verwarming en zowel warm als koud water, ideaal als werkruimte, hobbyruimte of atelier. Daarnaast beschikt de woning over een carport (2,85 meter hoog!) en een royaal dakterras op de bovenste verdieping, waar je in alle rust van zon en uitzicht geniet.
Wonen in Roombeek.
Roombeek is een levendige en culturele wijk met een breed aanbod aan winkels, musea en sportvoorzieningen. Het centrum van Enschede ligt op loopafstand en is eenvoudig bereikbaar via de Cultuurmijl. Tegelijkertijd bevinden parken en natuurgebieden zich om de hoek, wat zorgt voor een perfecte balans tussen stedelijk wonen en ontspanning. De bereikbaarheid met openbaar vervoer en uitvalswegen is uitstekend.
Indeling
Begane grond;
Entree met hal, meterkast en hangend toilet met fonteintje. De tuingerichte woonkamer beschikt over een houtkachel en dubbele openslaande deuren naar de overkapping en tuin. De straatgerichte open woonkeuken ligt op een speelse verhoging en is voorzien van een moderne inbouwkeuken met alle hedendaagse apparatuur. Vanuit de keuken leidt een fraaie houten trap naar de eerste verdieping.
Eerste verdieping;
Overloop met praktische inbouwkast voor het witgoed, twee slaapkamers en een luxe badkamer voorzien van een dubbel wastafelmeubel, hangend toilet, ligbad, inloopdouche en een lichtkoepel.
Tweede verdieping;
Vaste trap naar de zolderverdieping met een derde slaapkamer, vaste kastenwand en openslaande deuren naar het riante dakterras.
Kortom: een uitzonderlijk gave woning met karakter, comfort en duurzaamheid op een toplocatie.
Dit is een huis dat je gezien én gevoeld moet hebben.
Bijzonderheden:
- Bouwjaar: 2007.
- Perceeloppervlakte: 238 m².
- Woonoppervlakte: 121 m².
- Inhoud: 427 m³.
- Onder architectuur gebouwde twee-onder-een-kap stadswoning (architect: Michiel de Wit).
- Gelegen in de populaire, culturele en geliefde woonwijk Roombeek.
- Unieke en speelse indeling met veel aandacht voor licht, ruimte en zichtlijnen.
- Hoogwaardige materiaalafwerking met karakteristieke interne betonelementen met houtlook uitstraling.
- Volledig en optimaal geïsoleerd vanaf de bouw.
- Gasloos wonen dankzij aansluiting op het warmtenet.
- Energielabel A.
- Vloerverwarming in hal, keuken, toilet en badkamer.
- Tuingerichte woonkamer met houtgestookte kachel en dubbele openslaande deuren.
- Overkapping direct grenzend aan de woonkamer, waardoor binnen en buiten naadloos in elkaar overlopen.
- Straatgerichte open woonkeuken op verhoging, voorzien van moderne inbouwapparatuur.
- Drie slaapkamers, waaronder een slaapkamer met vaste kastenwand en openslaande deuren naar het dakterras.
- Moderne badkamer met ligbad, inloopdouche, dubbel wastafelmeubel, hangend toilet en lichtkoepel.
- Fraai aangelegde achtertuin op het zuiden met optimale privacy.
- Multifunctionele vrijstaande garage, volledig geïsoleerd en voorzien van vier lichtkoepels, verwarming en warm/koud water.
- Garage geschikt als werkruimte, atelier of hobbyruimte.
- Carport aanwezig die maar liefst 2,85 meter hoog is.
- Riant dakterras met veel zon en privacy.
- Centrum van Enschede op loopafstand, bereikbaar via de Cultuurmijl.
- Nabij winkels, horeca, musea, sportvoorzieningen, parken en uitvalswegen.
In de koopovereenkomst zullen de navolgende zaken worden opgenomen:
- Schriftelijkheidsvereiste: partijen zijn pas gebonden niet eerder dan dat er een schriftelijke koopovereenkomst is getekend door partijen.
- Ouderdomsclausule.
- Het stellen van een bankgarantie/waarborgsom ter grootte van 10% van de koopsom.
Aanvaarding: in overleg.
Interesse in dit huis? Schakel direct uw eigen NVM- aankoopmakelaar in. Uw NVM- aankoop makelaar komt op voor uw belang en bespaart u tijd, geld en zorgen.
Adressen van collega NVM- aankoopmakelaars in Twente vindt u op de website van NVM Twente.
powered by Friva | Lees ons Privacybeleid



























































