ENSCHEDE
€ 359.000
Bruggertstraat 311
4 Kamers
1 Badkamers
3 Slaapkamers
102 m²
E
Achtertuin
Bezichtiging aanvragen
Beschrijving
Gemoderniseerde jaren ’30-woning met vrij uitzicht en praktijkruimte in de tuin.
Op deze plek in ’t Bruggert, een geliefde en groene wijk in Enschede, voelt iedere dag een beetje als vakantie. Dankzij de vrije ligging, zonder overburen aan de voorzijde en met veel privacy aan de achterzijde, geniet je hier in alle rust van binnen en buiten.
Deze sfeervolle twee-onder-een-kapwoning uit de jaren ’30 is de afgelopen jaren met veel zorg gemoderniseerd en instapklaar. In 2021 is de woning aan de achterzijde royaal uitgebouwd, waardoor een lichte en comfortabele woonkeuken is ontstaan met vloerverwarming en openslaande deuren naar de zonnige tuin op het zuiden. De badkamer is in datzelfde jaar vernieuwd en op de eerste verdieping zijn in 2019 een extra toilet en een praktische wasruimte gerealiseerd. Achter in de tuin bevindt zich bovendien een volledig geïsoleerde praktijkruimte met eigen entree, ideaal voor werken aan huis.
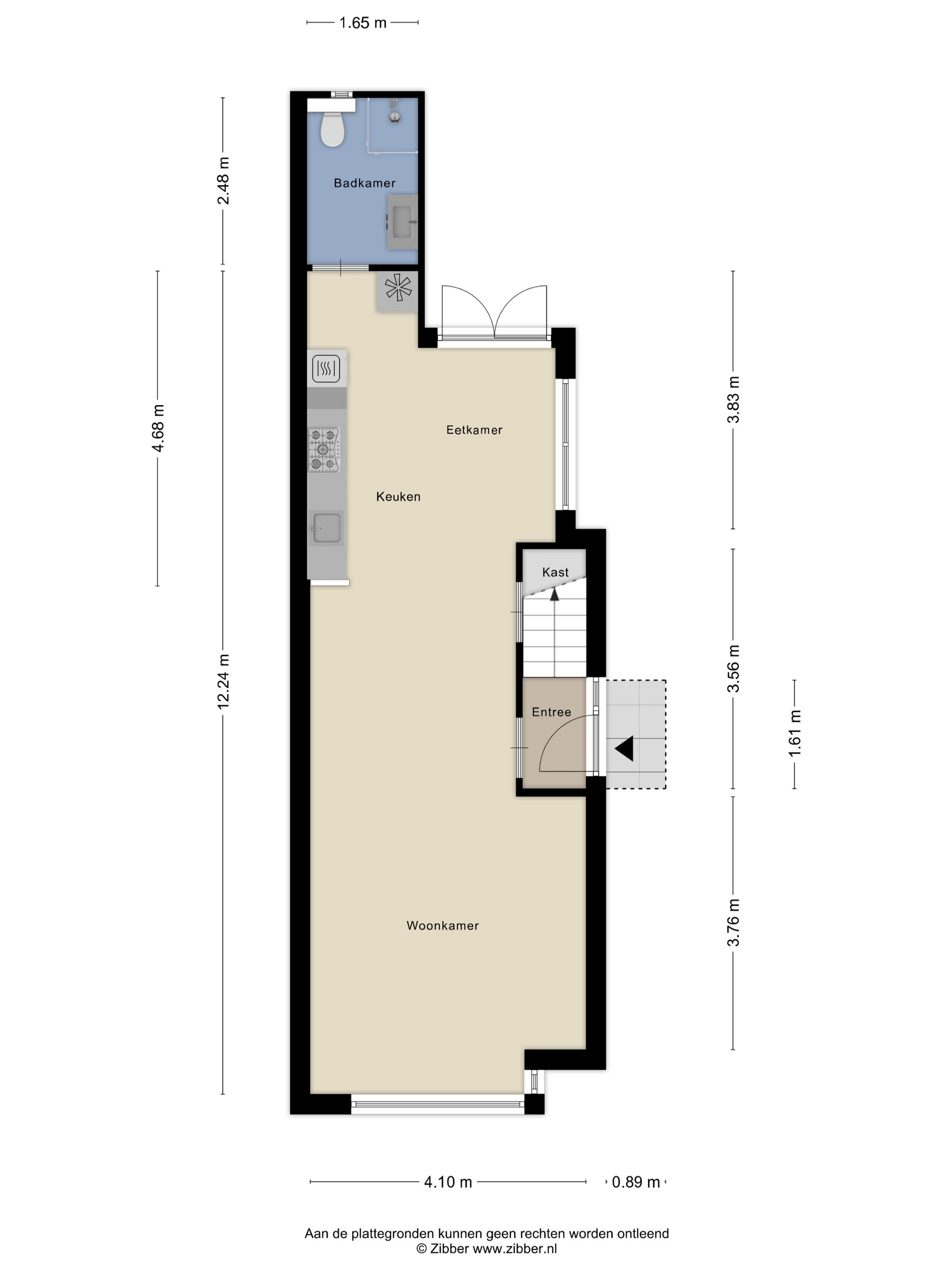
Indeling van de woning
Begane grond:
Vanuit de hal stap je direct de living in. Deze ruimte wordt gekenmerkt door de charmante erker en de houten vloer, die samen zorgen voor een warme en huiselijke sfeer. Grote ramen laten volop daglicht binnen en bieden een levendig uitzicht op de groene straat. De wanden op de begane grond zijn in 2021 professioneel gestuct, wat zorgt voor een verzorgde en moderne uitstraling.
Aan de achterzijde van de woning is in 2021 een royale uitbouw gerealiseerd, waarin zich de lichte woonkeuken bevindt. De woonkeuken is voorzien van vloerverwarming en openslaande deuren naar de zonnige tuin op het zuiden. De keuken is van alle gemakken voorzien met een ingebouwde koel-/vrieskast, combi oven/magnetron, gasfornuis, afzuiging en een in 2023 vernieuwde vaatwasser. De aangrenzende gemoderniseerde badkamer (2021) beschikt over een inloopdouche met regendouche, een badmeubel met wastafel, toilet en designradiator.
Eerste verdieping:
Via de vaste trap bereik je de eerste verdieping. De lichte overloop biedt toegang tot twee slaapkamers en toilet. De grootste slaapkamer aan de voorzijde is ruim en sfeervol en heeft een mooi uitzicht op het groen. De tweede slaapkamer ligt aan de achterzijde en is ideaal als werk- of slaapkamer. Daarnaast bevinden zich op deze verdieping een extra toilet (2019) en een praktische wasruimte met aansluitingen voor wasmachine en droger (2019), wat het wooncomfort merkbaar heeft vergroot.
Zolder/tweede verdieping:
Via een steektrap bereik je de tweede verdieping met dakkapellen, die zorgen voor veel natuurlijk licht. Daarnaast beschikt deze verdieping over bergruimte achter de knieschotten en een inbouwkast. De ruimte is momenteel in gebruik als logeerkamer en is ook geschikt als werk- of hobbyruimte.
Tuin:
De woning beschikt over een eigen pad naar de voordeur, dat doorloopt tot aan de poort naar de achtertuin en zorgt voor een prettige, zelfstandige toegang. Aan de voorzijde zijn geen directe overburen, waardoor je vrij uitkijkt over het groen van het park. De voortuin is fraai aangelegd en heeft een zorgvuldig gekozen beplanting die in elk seizoen tot bloei komt.
De achtertuin is een fijne plek om te ontspannen. Onder de overkapping is het prettig zitten en de tuin nodigt uit om te genieten van het buitenleven. De aanwezige druivenranken leveren ieder najaar eetbare druiven en zorgen voor extra groen en beschutting. Daarnaast is de achtertuin voorzien van een nieuw aangelegde buitenkraan (2021), ideaal voor het aansluiten van een tuinslang om de tuin van voor tot achter te besproeien.
Achter in de tuin bevindt zich een praktijkruimte met eigen entree en recent aangelegde wateraansluiting en -afvoer. Deze voormalige schuur is in 2021 tot in de puntjes verbouwd en volledig geïsoleerd en wordt momenteel gebruikt als schoonheidssalon, maar is ook uitstekend geschikt als thuiskantoor, kapsalon of nette berging voor fietsen en tuingereedschap.
Een belangrijk pluspunt is dat zich achter deze praktijkruimte nog een royaal stuk tuin bevindt. Dit gedeelte biedt veel privacy, extra buitenruimte en een zonnige ligging gedurende de hele dag.
Locatie
Wonen aan de Bruggertstraat 311 betekent wonen in een van de meest geliefde en groene wijken van Enschede: ’t Bruggert. Je woont hier rustig en groen, met het park direct voor de deur en alle dagelijkse voorzieningen in de nabijheid, zoals scholen, winkels, sportverenigingen en wandelpaden. Het centrum van Enschede is binnen tien minuten fietsen bereikbaar. Ook de A35 en andere uitvalswegen liggen op korte afstand, waardoor je snel richting onder andere Hengelo rijdt. Voor liefhebbers van natuur en buitenleven liggen zowel het buitengebied van Usselo als recreatiegebied Het Rutbeek praktisch om de hoek.
Bijzonderheden:
- Royale uitbouw met woonkeuken en vloerverwarming (2021).
- Vernieuwde badkamer (2021).
- Extra toilet en wasruimte op de eerste verdieping (2019).
- Volledig geïsoleerde praktijkruimte met eigen entree (2021).
- Vernieuwde meterkast met extra groep (2021).
- Schilderwerk recent uitgevoerd (2025).
- Zonnige tuin op het zuiden met vrij uitzicht op het park.
- Hoewel de woning energielabel E heeft, zijn de werkelijke energielasten, zowel voor gas als elektra in de praktijk opvallend laag, dankzij de nieuwe cv-ketel (2023) en verbeterde isolatie.
In de koopakte zullen de navolgende zaken worden opgenomen:
- Partijen zijn pas gebonden niet eerder dan dat er een schriftelijke koopovereenkomst is getekend door partijen (schriftelijkheidsvereiste).
- Voor woningen ouder dan 30 jaar is de ouderdomsclausule van toepassing.
- Voor woningen gebouwd voor 1993 is de asbestclausule van toepassing.
- Het stellen van een bankgarantie/waarborgsom ter grootte van 10% van de koopsom.
Aanvaarding: Per direct/in overleg.
Nieuwsgierig geworden? Download de brochure en bezoek de unieke woningwebsite: Bruggertstraat311.nl. Ontdek daar aanvullende informatie en alle belangrijke documenten over deze woning.
Op deze plek in ’t Bruggert, een geliefde en groene wijk in Enschede, voelt iedere dag een beetje als vakantie. Dankzij de vrije ligging, zonder overburen aan de voorzijde en met veel privacy aan de achterzijde, geniet je hier in alle rust van binnen en buiten.
Deze sfeervolle twee-onder-een-kapwoning uit de jaren ’30 is de afgelopen jaren met veel zorg gemoderniseerd en instapklaar. In 2021 is de woning aan de achterzijde royaal uitgebouwd, waardoor een lichte en comfortabele woonkeuken is ontstaan met vloerverwarming en openslaande deuren naar de zonnige tuin op het zuiden. De badkamer is in datzelfde jaar vernieuwd en op de eerste verdieping zijn in 2019 een extra toilet en een praktische wasruimte gerealiseerd. Achter in de tuin bevindt zich bovendien een volledig geïsoleerde praktijkruimte met eigen entree, ideaal voor werken aan huis.
Indeling van de woning
Begane grond:
Vanuit de hal stap je direct de living in. Deze ruimte wordt gekenmerkt door de charmante erker en de houten vloer, die samen zorgen voor een warme en huiselijke sfeer. Grote ramen laten volop daglicht binnen en bieden een levendig uitzicht op de groene straat. De wanden op de begane grond zijn in 2021 professioneel gestuct, wat zorgt voor een verzorgde en moderne uitstraling.
Aan de achterzijde van de woning is in 2021 een royale uitbouw gerealiseerd, waarin zich de lichte woonkeuken bevindt. De woonkeuken is voorzien van vloerverwarming en openslaande deuren naar de zonnige tuin op het zuiden. De keuken is van alle gemakken voorzien met een ingebouwde koel-/vrieskast, combi oven/magnetron, gasfornuis, afzuiging en een in 2023 vernieuwde vaatwasser. De aangrenzende gemoderniseerde badkamer (2021) beschikt over een inloopdouche met regendouche, een badmeubel met wastafel, toilet en designradiator.
Eerste verdieping:
Via de vaste trap bereik je de eerste verdieping. De lichte overloop biedt toegang tot twee slaapkamers en toilet. De grootste slaapkamer aan de voorzijde is ruim en sfeervol en heeft een mooi uitzicht op het groen. De tweede slaapkamer ligt aan de achterzijde en is ideaal als werk- of slaapkamer. Daarnaast bevinden zich op deze verdieping een extra toilet (2019) en een praktische wasruimte met aansluitingen voor wasmachine en droger (2019), wat het wooncomfort merkbaar heeft vergroot.
Zolder/tweede verdieping:
Via een steektrap bereik je de tweede verdieping met dakkapellen, die zorgen voor veel natuurlijk licht. Daarnaast beschikt deze verdieping over bergruimte achter de knieschotten en een inbouwkast. De ruimte is momenteel in gebruik als logeerkamer en is ook geschikt als werk- of hobbyruimte.
Tuin:
De woning beschikt over een eigen pad naar de voordeur, dat doorloopt tot aan de poort naar de achtertuin en zorgt voor een prettige, zelfstandige toegang. Aan de voorzijde zijn geen directe overburen, waardoor je vrij uitkijkt over het groen van het park. De voortuin is fraai aangelegd en heeft een zorgvuldig gekozen beplanting die in elk seizoen tot bloei komt.
De achtertuin is een fijne plek om te ontspannen. Onder de overkapping is het prettig zitten en de tuin nodigt uit om te genieten van het buitenleven. De aanwezige druivenranken leveren ieder najaar eetbare druiven en zorgen voor extra groen en beschutting. Daarnaast is de achtertuin voorzien van een nieuw aangelegde buitenkraan (2021), ideaal voor het aansluiten van een tuinslang om de tuin van voor tot achter te besproeien.
Achter in de tuin bevindt zich een praktijkruimte met eigen entree en recent aangelegde wateraansluiting en -afvoer. Deze voormalige schuur is in 2021 tot in de puntjes verbouwd en volledig geïsoleerd en wordt momenteel gebruikt als schoonheidssalon, maar is ook uitstekend geschikt als thuiskantoor, kapsalon of nette berging voor fietsen en tuingereedschap.
Een belangrijk pluspunt is dat zich achter deze praktijkruimte nog een royaal stuk tuin bevindt. Dit gedeelte biedt veel privacy, extra buitenruimte en een zonnige ligging gedurende de hele dag.
Locatie
Wonen aan de Bruggertstraat 311 betekent wonen in een van de meest geliefde en groene wijken van Enschede: ’t Bruggert. Je woont hier rustig en groen, met het park direct voor de deur en alle dagelijkse voorzieningen in de nabijheid, zoals scholen, winkels, sportverenigingen en wandelpaden. Het centrum van Enschede is binnen tien minuten fietsen bereikbaar. Ook de A35 en andere uitvalswegen liggen op korte afstand, waardoor je snel richting onder andere Hengelo rijdt. Voor liefhebbers van natuur en buitenleven liggen zowel het buitengebied van Usselo als recreatiegebied Het Rutbeek praktisch om de hoek.
Bijzonderheden:
- Royale uitbouw met woonkeuken en vloerverwarming (2021).
- Vernieuwde badkamer (2021).
- Extra toilet en wasruimte op de eerste verdieping (2019).
- Volledig geïsoleerde praktijkruimte met eigen entree (2021).
- Vernieuwde meterkast met extra groep (2021).
- Schilderwerk recent uitgevoerd (2025).
- Zonnige tuin op het zuiden met vrij uitzicht op het park.
- Hoewel de woning energielabel E heeft, zijn de werkelijke energielasten, zowel voor gas als elektra in de praktijk opvallend laag, dankzij de nieuwe cv-ketel (2023) en verbeterde isolatie.
In de koopakte zullen de navolgende zaken worden opgenomen:
- Partijen zijn pas gebonden niet eerder dan dat er een schriftelijke koopovereenkomst is getekend door partijen (schriftelijkheidsvereiste).
- Voor woningen ouder dan 30 jaar is de ouderdomsclausule van toepassing.
- Voor woningen gebouwd voor 1993 is de asbestclausule van toepassing.
- Het stellen van een bankgarantie/waarborgsom ter grootte van 10% van de koopsom.
Aanvaarding: Per direct/in overleg.
Nieuwsgierig geworden? Download de brochure en bezoek de unieke woningwebsite: Bruggertstraat311.nl. Ontdek daar aanvullende informatie en alle belangrijke documenten over deze woning.
Beschrijving
Gemoderniseerde jaren ’30-woning met vrij uitzicht en praktijkruimte in de tuin.
Op deze plek in ’t Bruggert, een geliefde en groene wijk in Enschede, voelt iedere dag een beetje als vakantie. Dankzij de vrije ligging, zonder overburen aan de voorzijde en met veel privacy aan de achterzijde, geniet je hier in alle rust van binnen en buiten.
Deze sfeervolle twee-onder-een-kapwoning uit de jaren ’30 is de afgelopen jaren met veel zorg gemoderniseerd en instapklaar. In 2021 is de woning aan de achterzijde royaal uitgebouwd, waardoor een lichte en comfortabele woonkeuken is ontstaan met vloerverwarming en openslaande deuren naar de zonnige tuin op het zuiden. De badkamer is in datzelfde jaar vernieuwd en op de eerste verdieping zijn in 2019 een extra toilet en een praktische wasruimte gerealiseerd. Achter in de tuin bevindt zich bovendien een volledig geïsoleerde praktijkruimte met eigen entree, ideaal voor werken aan huis.
Indeling van de woning
Begane grond:
Vanuit de hal stap je direct de living in. Deze ruimte wordt gekenmerkt door de charmante erker en de houten vloer, die samen zorgen voor een warme en huiselijke sfeer. Grote ramen laten volop daglicht binnen en bieden een levendig uitzicht op de groene straat. De wanden op de begane grond zijn in 2021 professioneel gestuct, wat zorgt voor een verzorgde en moderne uitstraling.
Aan de achterzijde van de woning is in 2021 een royale uitbouw gerealiseerd, waarin zich de lichte woonkeuken bevindt. De woonkeuken is voorzien van vloerverwarming en openslaande deuren naar de zonnige tuin op het zuiden. De keuken is van alle gemakken voorzien met een ingebouwde koel-/vrieskast, combi oven/magnetron, gasfornuis, afzuiging en een in 2023 vernieuwde vaatwasser. De aangrenzende gemoderniseerde badkamer (2021) beschikt over een inloopdouche met regendouche, een badmeubel met wastafel, toilet en designradiator.
Eerste verdieping:
Via de vaste trap bereik je de eerste verdieping. De lichte overloop biedt toegang tot twee slaapkamers en toilet. De grootste slaapkamer aan de voorzijde is ruim en sfeervol en heeft een mooi uitzicht op het groen. De tweede slaapkamer ligt aan de achterzijde en is ideaal als werk- of slaapkamer. Daarnaast bevinden zich op deze verdieping een extra toilet (2019) en een praktische wasruimte met aansluitingen voor wasmachine en droger (2019), wat het wooncomfort merkbaar heeft vergroot.
Zolder/tweede verdieping:
Via een steektrap bereik je de tweede verdieping met dakkapellen, die zorgen voor veel natuurlijk licht. Daarnaast beschikt deze verdieping over bergruimte achter de knieschotten en een inbouwkast. De ruimte is momenteel in gebruik als logeerkamer en is ook geschikt als werk- of hobbyruimte.
Tuin:
De woning beschikt over een eigen pad naar de voordeur, dat doorloopt tot aan de poort naar de achtertuin en zorgt voor een prettige, zelfstandige toegang. Aan de voorzijde zijn geen directe overburen, waardoor je vrij uitkijkt over het groen van het park. De voortuin is fraai aangelegd en heeft een zorgvuldig gekozen beplanting die in elk seizoen tot bloei komt.
De achtertuin is een fijne plek om te ontspannen. Onder de overkapping is het prettig zitten en de tuin nodigt uit om te genieten van het buitenleven. De aanwezige druivenranken leveren ieder najaar eetbare druiven en zorgen voor extra groen en beschutting. Daarnaast is de achtertuin voorzien van een nieuw aangelegde buitenkraan (2021), ideaal voor het aansluiten van een tuinslang om de tuin van voor tot achter te besproeien.
Achter in de tuin bevindt zich een praktijkruimte met eigen entree en recent aangelegde wateraansluiting en -afvoer. Deze voormalige schuur is in 2021 tot in de puntjes verbouwd en volledig geïsoleerd en wordt momenteel gebruikt als schoonheidssalon, maar is ook uitstekend geschikt als thuiskantoor, kapsalon of nette berging voor fietsen en tuingereedschap.
Een belangrijk pluspunt is dat zich achter deze praktijkruimte nog een royaal stuk tuin bevindt. Dit gedeelte biedt veel privacy, extra buitenruimte en een zonnige ligging gedurende de hele dag.
Locatie
Wonen aan de Bruggertstraat 311 betekent wonen in een van de meest geliefde en groene wijken van Enschede: ’t Bruggert. Je woont hier rustig en groen, met het park direct voor de deur en alle dagelijkse voorzieningen in de nabijheid, zoals scholen, winkels, sportverenigingen en wandelpaden. Het centrum van Enschede is binnen tien minuten fietsen bereikbaar. Ook de A35 en andere uitvalswegen liggen op korte afstand, waardoor je snel richting onder andere Hengelo rijdt. Voor liefhebbers van natuur en buitenleven liggen zowel het buitengebied van Usselo als recreatiegebied Het Rutbeek praktisch om de hoek.
Bijzonderheden:
- Royale uitbouw met woonkeuken en vloerverwarming (2021).
- Vernieuwde badkamer (2021).
- Extra toilet en wasruimte op de eerste verdieping (2019).
- Volledig geïsoleerde praktijkruimte met eigen entree (2021).
- Vernieuwde meterkast met extra groep (2021).
- Schilderwerk recent uitgevoerd (2025).
- Zonnige tuin op het zuiden met vrij uitzicht op het park.
- Hoewel de woning energielabel E heeft, zijn de werkelijke energielasten, zowel voor gas als elektra in de praktijk opvallend laag, dankzij de nieuwe cv-ketel (2023) en verbeterde isolatie.
In de koopakte zullen de navolgende zaken worden opgenomen:
- Partijen zijn pas gebonden niet eerder dan dat er een schriftelijke koopovereenkomst is getekend door partijen (schriftelijkheidsvereiste).
- Voor woningen ouder dan 30 jaar is de ouderdomsclausule van toepassing.
- Voor woningen gebouwd voor 1993 is de asbestclausule van toepassing.
- Het stellen van een bankgarantie/waarborgsom ter grootte van 10% van de koopsom.
Aanvaarding: Per direct/in overleg.
Nieuwsgierig geworden? Download de brochure en bezoek de unieke woningwebsite: Bruggertstraat311.nl. Ontdek daar aanvullende informatie en alle belangrijke documenten over deze woning.
Op deze plek in ’t Bruggert, een geliefde en groene wijk in Enschede, voelt iedere dag een beetje als vakantie. Dankzij de vrije ligging, zonder overburen aan de voorzijde en met veel privacy aan de achterzijde, geniet je hier in alle rust van binnen en buiten.
Deze sfeervolle twee-onder-een-kapwoning uit de jaren ’30 is de afgelopen jaren met veel zorg gemoderniseerd en instapklaar. In 2021 is de woning aan de achterzijde royaal uitgebouwd, waardoor een lichte en comfortabele woonkeuken is ontstaan met vloerverwarming en openslaande deuren naar de zonnige tuin op het zuiden. De badkamer is in datzelfde jaar vernieuwd en op de eerste verdieping zijn in 2019 een extra toilet en een praktische wasruimte gerealiseerd. Achter in de tuin bevindt zich bovendien een volledig geïsoleerde praktijkruimte met eigen entree, ideaal voor werken aan huis.
Indeling van de woning
Begane grond:
Vanuit de hal stap je direct de living in. Deze ruimte wordt gekenmerkt door de charmante erker en de houten vloer, die samen zorgen voor een warme en huiselijke sfeer. Grote ramen laten volop daglicht binnen en bieden een levendig uitzicht op de groene straat. De wanden op de begane grond zijn in 2021 professioneel gestuct, wat zorgt voor een verzorgde en moderne uitstraling.
Aan de achterzijde van de woning is in 2021 een royale uitbouw gerealiseerd, waarin zich de lichte woonkeuken bevindt. De woonkeuken is voorzien van vloerverwarming en openslaande deuren naar de zonnige tuin op het zuiden. De keuken is van alle gemakken voorzien met een ingebouwde koel-/vrieskast, combi oven/magnetron, gasfornuis, afzuiging en een in 2023 vernieuwde vaatwasser. De aangrenzende gemoderniseerde badkamer (2021) beschikt over een inloopdouche met regendouche, een badmeubel met wastafel, toilet en designradiator.
Eerste verdieping:
Via de vaste trap bereik je de eerste verdieping. De lichte overloop biedt toegang tot twee slaapkamers en toilet. De grootste slaapkamer aan de voorzijde is ruim en sfeervol en heeft een mooi uitzicht op het groen. De tweede slaapkamer ligt aan de achterzijde en is ideaal als werk- of slaapkamer. Daarnaast bevinden zich op deze verdieping een extra toilet (2019) en een praktische wasruimte met aansluitingen voor wasmachine en droger (2019), wat het wooncomfort merkbaar heeft vergroot.
Zolder/tweede verdieping:
Via een steektrap bereik je de tweede verdieping met dakkapellen, die zorgen voor veel natuurlijk licht. Daarnaast beschikt deze verdieping over bergruimte achter de knieschotten en een inbouwkast. De ruimte is momenteel in gebruik als logeerkamer en is ook geschikt als werk- of hobbyruimte.
Tuin:
De woning beschikt over een eigen pad naar de voordeur, dat doorloopt tot aan de poort naar de achtertuin en zorgt voor een prettige, zelfstandige toegang. Aan de voorzijde zijn geen directe overburen, waardoor je vrij uitkijkt over het groen van het park. De voortuin is fraai aangelegd en heeft een zorgvuldig gekozen beplanting die in elk seizoen tot bloei komt.
De achtertuin is een fijne plek om te ontspannen. Onder de overkapping is het prettig zitten en de tuin nodigt uit om te genieten van het buitenleven. De aanwezige druivenranken leveren ieder najaar eetbare druiven en zorgen voor extra groen en beschutting. Daarnaast is de achtertuin voorzien van een nieuw aangelegde buitenkraan (2021), ideaal voor het aansluiten van een tuinslang om de tuin van voor tot achter te besproeien.
Achter in de tuin bevindt zich een praktijkruimte met eigen entree en recent aangelegde wateraansluiting en -afvoer. Deze voormalige schuur is in 2021 tot in de puntjes verbouwd en volledig geïsoleerd en wordt momenteel gebruikt als schoonheidssalon, maar is ook uitstekend geschikt als thuiskantoor, kapsalon of nette berging voor fietsen en tuingereedschap.
Een belangrijk pluspunt is dat zich achter deze praktijkruimte nog een royaal stuk tuin bevindt. Dit gedeelte biedt veel privacy, extra buitenruimte en een zonnige ligging gedurende de hele dag.
Locatie
Wonen aan de Bruggertstraat 311 betekent wonen in een van de meest geliefde en groene wijken van Enschede: ’t Bruggert. Je woont hier rustig en groen, met het park direct voor de deur en alle dagelijkse voorzieningen in de nabijheid, zoals scholen, winkels, sportverenigingen en wandelpaden. Het centrum van Enschede is binnen tien minuten fietsen bereikbaar. Ook de A35 en andere uitvalswegen liggen op korte afstand, waardoor je snel richting onder andere Hengelo rijdt. Voor liefhebbers van natuur en buitenleven liggen zowel het buitengebied van Usselo als recreatiegebied Het Rutbeek praktisch om de hoek.
Bijzonderheden:
- Royale uitbouw met woonkeuken en vloerverwarming (2021).
- Vernieuwde badkamer (2021).
- Extra toilet en wasruimte op de eerste verdieping (2019).
- Volledig geïsoleerde praktijkruimte met eigen entree (2021).
- Vernieuwde meterkast met extra groep (2021).
- Schilderwerk recent uitgevoerd (2025).
- Zonnige tuin op het zuiden met vrij uitzicht op het park.
- Hoewel de woning energielabel E heeft, zijn de werkelijke energielasten, zowel voor gas als elektra in de praktijk opvallend laag, dankzij de nieuwe cv-ketel (2023) en verbeterde isolatie.
In de koopakte zullen de navolgende zaken worden opgenomen:
- Partijen zijn pas gebonden niet eerder dan dat er een schriftelijke koopovereenkomst is getekend door partijen (schriftelijkheidsvereiste).
- Voor woningen ouder dan 30 jaar is de ouderdomsclausule van toepassing.
- Voor woningen gebouwd voor 1993 is de asbestclausule van toepassing.
- Het stellen van een bankgarantie/waarborgsom ter grootte van 10% van de koopsom.
Aanvaarding: Per direct/in overleg.
Nieuwsgierig geworden? Download de brochure en bezoek de unieke woningwebsite: Bruggertstraat311.nl. Ontdek daar aanvullende informatie en alle belangrijke documenten over deze woning.
powered by Friva | Lees ons Privacybeleid
































































